6月24日25日 【完全予約制】新リノベモデルハウス 今しか見れない!!断熱・耐震 工事現場見学会を開催!in 富士市松岡
イベント概要
- 開催日
- 2023年6月24日25日
- 開催時間
- 10:00-16:30
- 開催場所
- 富士市松岡
- 入場無料
- 無料相談
- 土地相談
- ローン相談
- 開催日
- 2023年6月24日25日
- 開催時間
- 10:00-16:30
- 開催場所
- 富士市松岡
- 入場無料
- 無料相談
- 土地相談
- ローン相談
イベント詳細
今しか見られない!リノベの断熱性能向上の裏側!!
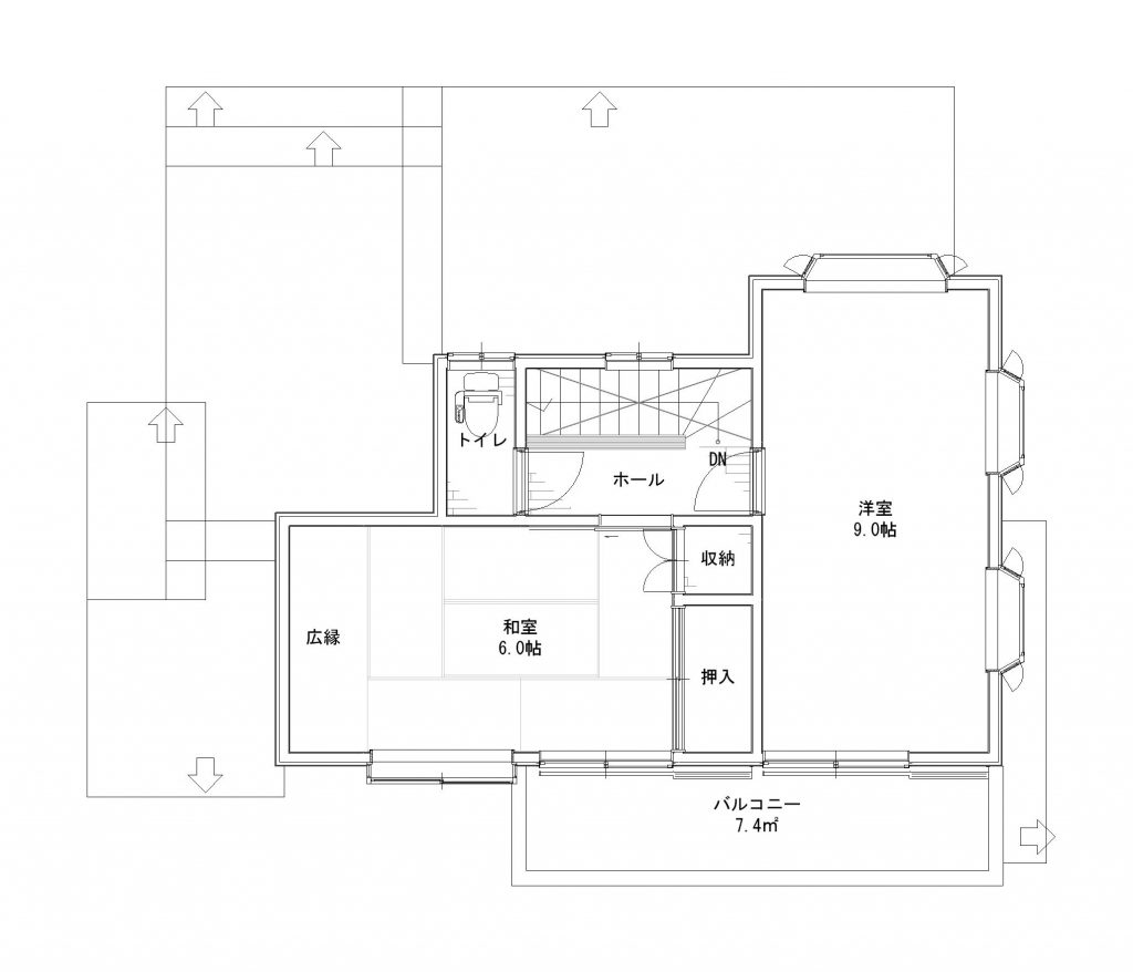
2023年9月完成予定の「新リノベモデルハウス!!」
断熱性能・耐震性能を向上させ、現代の生活スタイルに合うように間取りもガラッと変貌します!!
リノベーションは今とっても話題の施工方法です。
リフォームのように、一部分だけ施工したり、見た目だけきれいにするものとは違い、
性能も向上させて、住む人の身体に優しい健康住宅に生まれ変わらせることが出来ます。
リノベの魅力はコストコントロール出来るところ♪
今回のモデルハウスは全面的に施工しますが、お客様の予算や要望に合わせて施工範囲が指定出来、
コストコントロールも柔軟に対応できるのがリノベーションの最大の魅力です。
届け!性能向上リノベを大切にするエコフィールドの思い!
ただ、リノベーションすればいいという訳ではありません。
リノベーションは性能向上させるのと、させないのでは雲泥の差です。
「長く住む家だからこそ、お金をかけるのであれば、快適な暮らしが出来るお家にリノベーションしてほしい。」
これがエコフィールドの願いです。
そんなエコフォールドでは、内面の施工方法もしっかりと確認していただきたいと思い、このような見学会を開催いたします!
ぜひ新築検討中の方も、一度リノベについて見て実感してみてください☆
エコフィールドでは不動産部もございますので、物件探しからリノベーションまでまるっとお任せいただけます!!
購入からのお客様もたくさんいらっしゃいますよ♪






